Pular para o conteúdo

Soluções versáteis no ramo de transportes, içamento e remoção de cargas pesadas e Plano de Rigger.

Produtividade, garantia de segurança e economia na locação de equipamentos e equipes especializadas com a solução para realizar os mais diversos projetos.

Veículos disponíveis

Guindaste Bi-Articulado

Guindauto Bi-Articulado

Mini Guindaste Tipo Aranha

Mini Guindaste Tipo Aranha

Caminhão Guindauto articulado

Caminhão Guindauto articulado

Guindaste telescópico a partir de 30 Toneladas

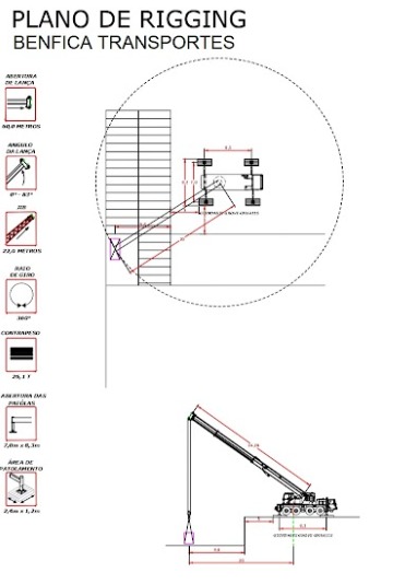
Plano de Rigger

A Benfica Transportes conta com departamento próprio de engenharia para elaboração do PLANO DE RIGGER que consiste no planejamento detalhado da movimentação a ser executada através de estudo,  memorial de cálculos e desenhos em AutoCAD,  proporcionando a escolha do equipamento e acessórios mais adequados para cada serviço, otimizando custos e garantindo maior segurança nas operações.

Sobre a Benfica Transportes

Desde 1968 no mercado de Locação de Guindastes e Guindautos também realizando remoções de diversos equipamentos. A Benfica Locações e Transportes tem o objetivo de executar o seu projeto com total eficiência e segurança, garantindo total satisfação do cliente, atendemos na Capital de São Paulo e outras localidades.

Na Benfica Transportes você encontra, solução, honestidade, qualidade e um valor justo para que tenha total satisfação na hora da contratação dos nossos serviços.

Entre em contato